Trong đời sống tâm linh của người Việt, thờ cúng tổ tiên giữ một vai trò rất quan trọng. Đây là cách thể hiện lòng thành kính và cầu mong sự phù hộ từ ông bà, đồng thời giáo dục con cháu về đạo lý “uống nước nhớ nguồn”. Bạn có biết vị trí lý tưởng để đặt bàn thờ cho nhà 3 tầng là ở đâu không? Skyhome sẽ giúp bạn khám phá điều này. Bàn thờ không chỉ là nơi gia đình thể hiện lòng kính trọng với tổ tiên mà còn là biểu tượng của văn hóa và tín ngưỡng. Một bàn thờ được chăm sóc chu đáo sẽ là nơi gia chủ cầu nguyện và tìm kiếm bình yên, trong khi bàn thờ bừa bộn có thể mang lại điều không tốt. Bàn thờ cũng là nơi gia đình sum họp để tưởng nhớ những người đã khuất và gửi gắm mong ước tốt đẹp.
Vị Trí Đặt Bàn Thờ trong Nhà 3 Tầng
-
- Tầng 3 hoặc Tầng Thượng: Đối với những ngôi nhà 3 tầng rộng rãi, thiết kế một phòng thờ riêng ở tầng 3 là lựa chọn lý tưởng. Tầng thượng là nơi cao nhất, thanh tịnh, rất thích hợp cho không gian tâm linh. Nếu không có tầng tum, bạn có thể xây một tum nhỏ trên sân thượng để đặt bàn thờvà giúp việc thắp hương và hóa vàng được thực hiện an toàn và thuận tiện.
-

- Bản vẽ mặt bằng đặt bàn thờ tại vị trí tầng 3 hoặc tầng thượng ( ảnh Skyhome)
-
-
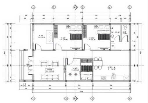
- Tầng Trệt: Nếu gia đình bạn có nhiều thế hệ cùng sống, nên cân nhắc đặt bàn thờ ở tầng trệt để thuận tiện cho người già và trẻ nhỏ. Tuy nhiên, cần tạo không gian riêng tư và yên tĩnh cho bàn thờ.
-
-

- Bản vẽ mặt bằng Nhà 3 nên bố trí đặt bàn thờ ở tầng trệt ( ảnh Skyhome)
Mỗi người có một bản mệnh riêng, do đó, việc lựa chọn vị trí bàn thờ phù hợp sẽ giúp cân bằng năng lượng và mang lại điều tốt lành.
Lưu Ý Khi Bố Trí Bàn Thờ
-
-
-
- Hướng: Hướng đặt bàn thờ cần phù hợp với mệnh của gia chủ. Gia chủ Đông Tứ Trạch và Tây Tứ Trạch sẽ có hướng khác nhau. Đặc biệt, nên chọn hướng bàn thờ theo nguyên tắc “tọa cát hướng cát” để phát huy tối đa tác dụng phong thủy.
-
-
-

- Bản vẽ mặt bằng cho hướng đặt bàn thờ nhà 3 tầng ( ảnh Skyhome)
-
-
-
- Phong Thủy: Đặt bàn thờ ở vị trí bằng phẳng, chắc chắn. Nếu đặt trong phòng khách, nên chọn gần cửa sổ hoặc ở trung tâm để tạo điểm nhấn.
-
-
-

- bản vẽ mặt bằng Phong thủy đặt bàn thờ cho mẫu nhà 3 tầng ( ảnh Skyhome)
Kiêng kỵ khi đặt bàn thờ
| Kiêng Kỵ Khi Đặt Bàn Thờ | Giải Thích |
|---|---|
| Không đặt di ảnh tổ tiên sát tường và tượng Thần Phật gần nhau | Tránh xung khắc giữa tổ tiên và thần linh trong thờ cúng. |
| Tránh đặt đồ điện gần bàn thờ | Hạn chế ảnh hưởng xấu đến phong thủy và trường khí. |
| Giữ gìn bàn thờ sạch sẽ, không đặt gần nhà vệ sinh hay bếp | Đảm bảo sự thanh tịnh và trang nghiêm cho không gian thờ cúng. |
| Không đặt bàn thờ ở lối đi, trên nóc tủ hoặc đối diện với bếp | Tránh làm mất sự yên tĩnh và trang nghiêm của bàn thờ. |
| Không đặt bàn thờ gần cửa hoặc đường lớn | Tránh luồng khí xấu ảnh hưởng đến sự an lành của gia đình. |
-

- Kiêng kỵ gì khi đặt bàn thờ cho mẫu nhà 3 tầng ( ảnh Skyhome)
Giới thiệu các bản vẽ thiết kế nhà 3 tầng có phòng thờ được bố trí hợp lý
-

- bản vẽ thiết kế nhà 3 tầng có phòng thờ được bố trí hợp lý ( ảnh Skyhome)
Bản vẽ thiết kế ngôi nhà 3 tầng này bố trí phòng thờ rộng rãi ngay đầu cầu thang, thuận tiện cho việc sinh hoạt tâm linh. Cả sân trước và sân sau thoáng đãng, thích hợp cho việc phơi đồ và nghỉ ngơi.
-

- Bản vẽ thiết kế ngôi nhà 3 tầng này có một phòng thờ riêng biệt ở tầng 3 ( ảnh Skyhome)
Bản vẽ thiết kế ngôi nhà 3 tầng này có một phòng thờ riêng biệt ở tầng 3 được thiết kế một phòng thờ rộng rãi có thể điều chỉnh hướng thờ theo ý muốn. Các phòng khác được bố trí hợp lý tạo nên không gian sống tiện nghi.
